Планування квартир Канкріт

Планування квартир Канкріт

Будинок
Будинок 1
Показати продані
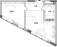
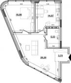
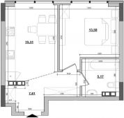
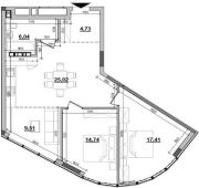
Кількість кімнат
Площа від 40.35 до 79.08 м2

Ціни від забудовника

За квартиру
від  2 670 000 грн
від  64 245 $
За м2
63 600 - 66 100 грн
1 531 - 1 591 $

Розтермінування

Розтермінування
1-й внесок від 30%
до квітня 2025

Кінець будівництва

2 кв. 2027
РІЕЛ
Надійний
забудовник
Рік заснування 2003
Здано ЖК 25
Будується ЖК 19
В продажі ЖК 21
Відгуки про Канкріт
Залишити свій відгук
Залишити свій відгук
Ваше загальне враження про ЖК
Розташування та інфраструктура
Планування
Ціна / Якість
Акції забудовників
Новобудови Київської області
м. Київ, вул. Львівська / вул. Живописна, 3
Житомирська
від 2 560 000 грн
від 61 598 $
(від 54 200 грн/м2)
(від 1 305 $/м2)
Видалити з обраного?
м. Київ, просп. Повітрофлотський, 56
від 2 790 000 грн
від 67 132 $
(від 55 050 грн/м2)
(від 1 325 $/м2)
Видалити з обраного?
м. Київ, вул. Богатирська
від 1 790 000 грн
від 43 071 $
(від 44 500 грн/м2)
(від 1 071 $/м2)
Видалити з обраного?
ЖК Great
Відмінна ціна
м. Київ, Дніпровська набережна
від 366 000 грн
від 8 807 $
(від 31 550 грн/м2)
(від 760 $/м2)
Видалити з обраного?